Information
Sophia
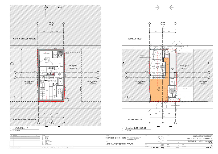
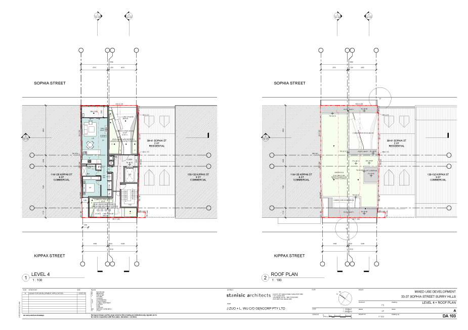
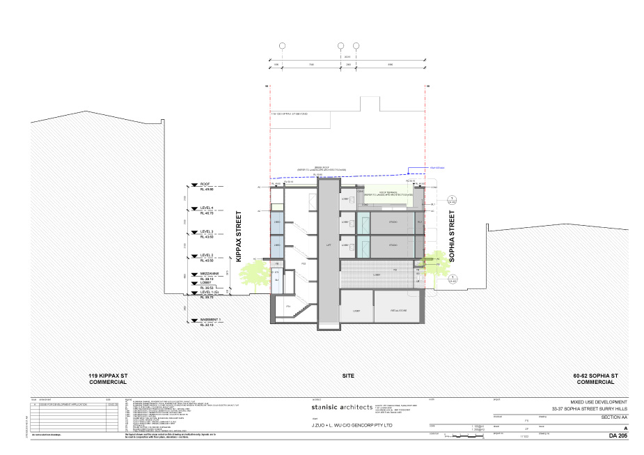
The design concept for the project is a contemporary infill, mixed use development within an established urban setting that is built to the dual street alignment and engages with the street. The external expression has been skilfully designed to relate to the surrounding existing context and clearly distinguish between the different uses within a unified composition. Kippax Street is activated with a large shop at Level 1 (Ground) Sophia Street with an entry lobby and loading dock entry. Both street frontages have narrow awnings to emphasise the base and top of the building while providing shade and weather protection. The roof of the building is punctuated with two small communal open spaces that are open to the sky, comprising passive communal areas, seating and planting in planter boxes and on green walls. The south facing communal open space to Kippax Street is concealed behind the façade, maintaining the rhythm of glass and steel fluted panels. The large opening is cut into the roof slab above this space to maintain the integrity of the form. The north facing communal open space to Sophia Street is expressed as an interruption in the framed façade behind a metal palisade screen. This space has an outlook over the ridge of the neighbouring buildings on the northern side of Sophia Street that are only 2 storeys in height. The facades to Sophia and Kippax Streets incorporate narrow windows and solid panels at Level 2 and above to create a vertical proportion that relates to the adjoining terrace houses and adjoining warehouses.
Sophia Street is a minor, single lane street that extends from Terry Street near Elizabeth Street to the west and to Riley Street to the east. It has two clearly defined characters, delineated by Waterloo Street. Sophia Street (west) to the west of the site, primarily serves as a service lane, with narrow carriageway and 600mm wide footpaths, providing access to carparking as well as loading docks for waste collection. Sophia Street (east), where the subject site is located, has a markedly different character, with wider carriageway comprising parking on the south side and 1-1.5m wide footpaths. This section of the street has a diverse range of uses including retail, offices and residential in the form of terrace houses. The street also contains street trees spaced wide apart that range in height from 3-4 storeys. Kippax Street is a primary street that extends from Elizabeth Street to Little Riley Street. It is characterised by a two-way carriageway and parking on both sides of the street. There are a range of uses including retail, offices and residential built to the street boundary with active uses at the ground level.
Communal open spaces on the roof terrace incorporates small gathering spaces, in-built timber benches and picnic tables for small gathering, formed concrete benches, wire mesh secured to the wall for flowering vines, small flowering tree to add scale and seasonal interest, timber lazy benches and informal seating. These spaces are accessible to all residents and include a small flowering tree, lush planting with a mix of colour and texture, green wall with staghorn planting and low level planting with trailing plants along the edges of planters. The roof terraces receive direct sunlight all year round, receiving sun from the north east and north west.
The building character is enhanced through the use of ‘Basalt’ steel fluted panels and glass technology (clear, tinted and translucent glass) that regularise the exterior appearance of the building, respond to orientation and create a strong vertical proportion of narrow solid panels and windows. The building has a layered facade comprising a central solid form of grooved insitu concrete that is ‘sandwiched’ by a deep lightweight veneer comprising steel panels, steel PFC to slab edges and frameless glass screens and windows that enliven the street elevations and create fine grain detail. The interplay of the solid form and the lightweight elements create a distinct and unifying expression to the building. A deep recess in the built form to Kippax Street achieves a comfortable relationship with the existing warehouse to the north and relieves the long street wall above Level 1. The street interface to Kippax Street maximises street activation with full height steel framed windows and glazed white brickwork. Due to the steeply sloping topography, the entry to the shop is a small forecourt that is marked with an integrated brick signpost that sits within the peculiar boundary alignment. The regularised elevation to Sophia Street has been disrupted with a metal palisade fence at Level 4 to maximise outlook from the communal open spaces over the rooftops of buildings opposite the site. The ‘frame’ unifies the elevation composition and provides shade to the communal open space. A narrow awning with steel PFC fascia defines the base of the frame and separates the different uses and entry lobby. The base of the building is composed of glazed white brickwork, glass and aluminium roller shutter.
Data
Type: Live/ Work/ Hybrid
Location: 33-37 Sophia Street, Surry Hills, NSW, Australia
Status: Development Application Lodged
Year: 2017- on-going
Client: Zui + Wu
Site area: 210sqm
Floor Area: 521qm (71sqm Retail. 450sqm Residential)
Floor space ratio: 2.48:1
Height: 4 storeys
Apartments : 5
Collaborators: Sturt Noble Associates, Perica + Associates Urban Planning
Digital Imagery: David Duloy
Image
Drawing
Cgi


