Information
Kingsway Health
The design concept for the project is a freestanding, tempered glass pavilion within a landscaped setting that provides a flexible framework for occupation as a health services facility. The external expression has been skilfully designed to accommodate a range of different tenancies while maintaining the integrity of the design. The design achieves a strong image as a ‘healthy building’. The building character is further enhanced through the use of metal attachments (horizontal and vertical screens) and glass technology (clear, tinted, translucent and opaque glass and DGUs) that adjust to the existing and future neighbouring developments and respond to orientation.
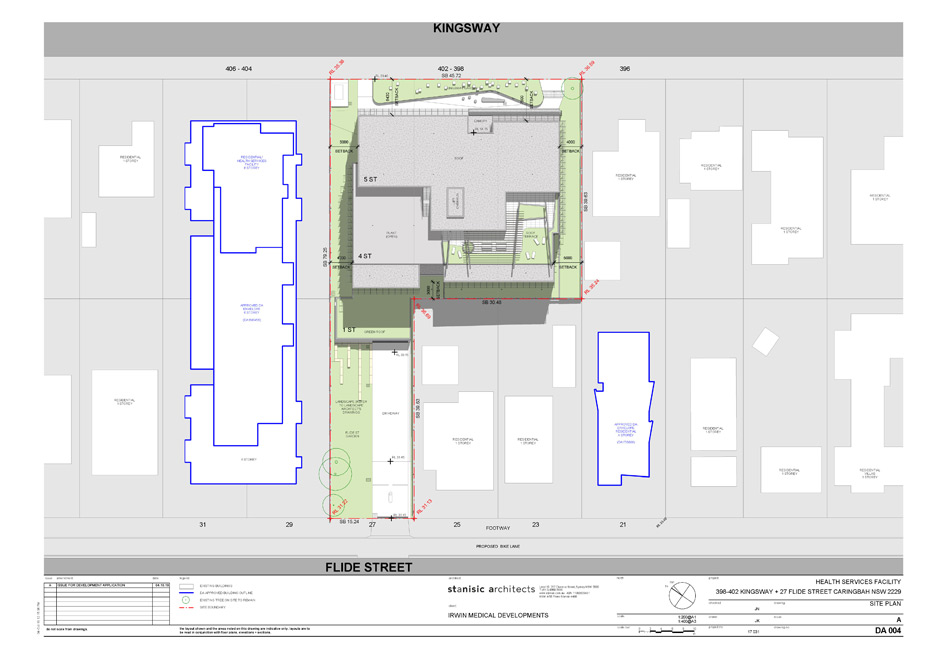
The building is an articulated free-standing form that is seen-in-the-round with dual frontages to the Kingsway and Flide Street. It maintains a unified composition by adopting a ‘monkey grip’ form, where the opposing corners are the same.
The lightweight metal features, deep recesses and articulated front and side elevations are all important architectural devices that create an appropriate bulk and scale to the street that is clearly distinguished as a health service facility within an anticipated future mixed-use context.
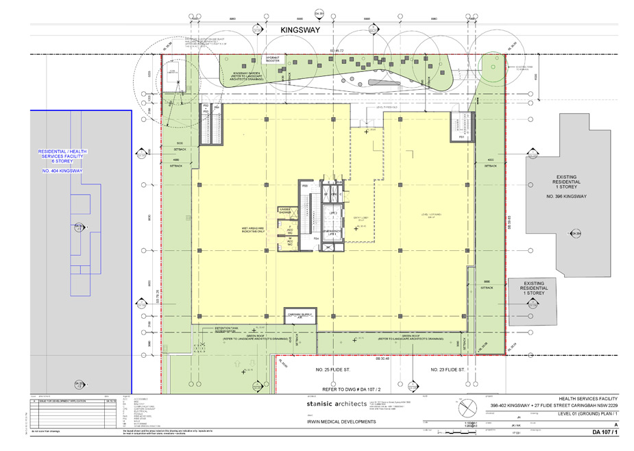
The primary address for the site is to Kingsway which is marked by stone entry wall that has been angled to direct pedestrians to the entry lobby. The front setback zone contains endemic trees, sandstone block sculptures, steel structure supporting flowering native vines on the entry awning and an informal seating area at the entry.
The vehicular entry is from Flide Street which ramps down to an entry portal and is lined with an extensive planted embankment with terraced sandstone blocks. The roof over the entry portal is planted with self-sustaining succulents that spill over the edges.
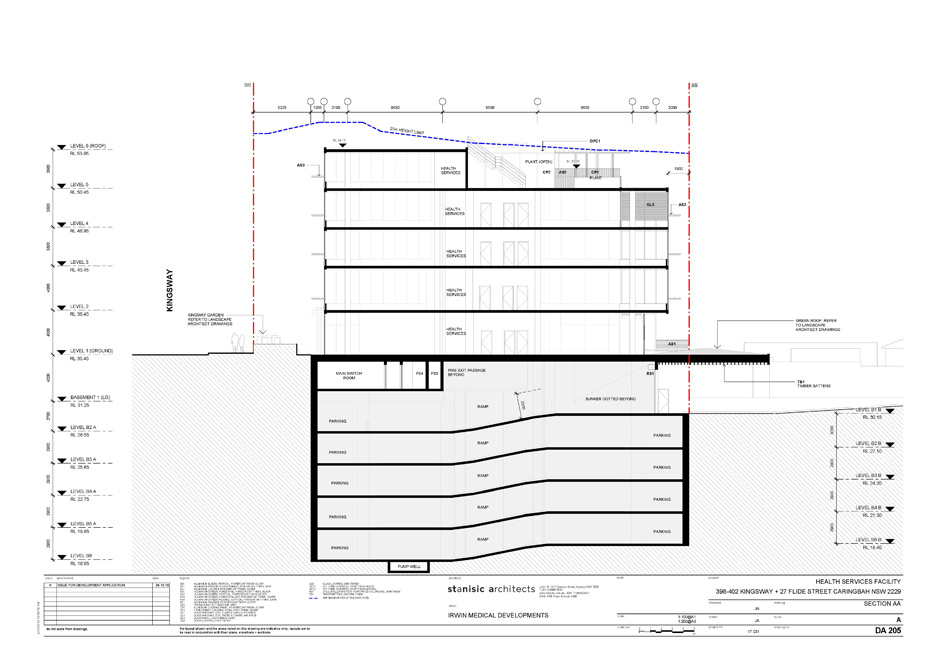
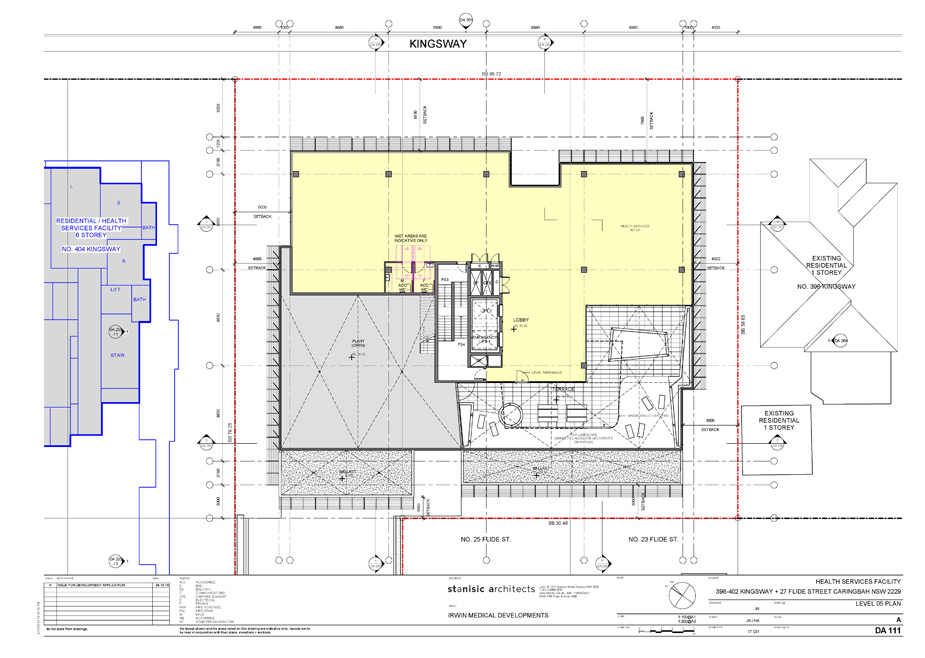
A landscaped roof terrace is located at Level 5 containing raised island planters, artificial turf with sun chairs, picnic tables and steel shade structure with flowering vines. A metal palisade railing along the southern face of the roof terrace maximises views to Port Hacking.
Data
Type: Work/Hybrid
Location: 398-402 Kingsway + 27 Flide Street, Caringbah, NSW Australia
Status: Work in progress
Year: 2018 – ongoing
Client: Irwin Medical Developments
Site Area: 2415.54 sqm
Floor area: 4831 sqm
Floor Space Ratio: 2.0:1
Height: 5 storeys
Collaborators: Sturt Noble Associates, Planning Ingenuity
Digital Imagery: David Duloy Illustrations
Image
Drawing
Cgi
Related Projects

Macquarie Street
The building is a unique tower which reflects its city centre, river and street setting. It is a ‘building-in-the-round’ which is designed to be viewed from all directions. It will be an urban marker …

