Information
Macquarie Street
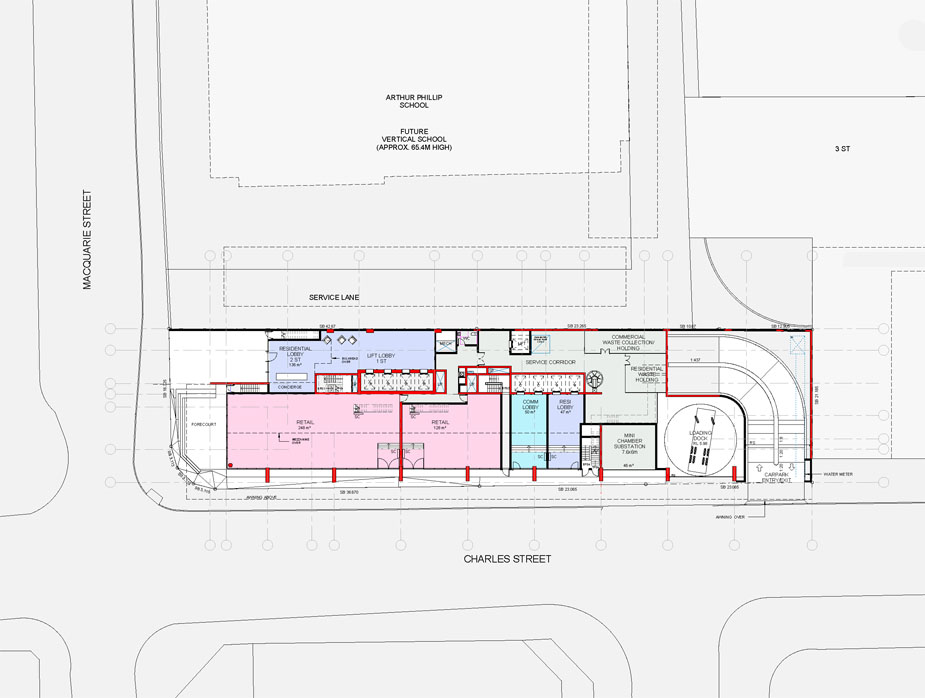
The building is a unique tower which reflects its city centre, river and street setting. It is a ‘building-in-the-round’ which is designed to be viewed from all directions. It will be an urban marker and the most prominent building on the eastern edge of the city centre, complementing the tall towers on the city’s western edge and along the riverfront. The mass and bulk of the building is softened by sky terraces while maintaining the vertical emphasis of the tower form to produce a distinctive urban habitat for the city. The building adopts a ‘hybrid form’ of tower with street wall to interface the ground, the street, the city, the sun and the sky. It incorporates unique environmental initiatives of harvesting sunlight and natural air to reduce the carbon footprint of the building and increase the enjoyment of residents and visitors. The tower is designed to balance outlook, natural ventilation and sunlight while giving wind protection to external private spaces. It is a mixed-use building, predominant residential, with shops at street level, offices above and an ‘aerial’ child care centre, all with basement carparking.
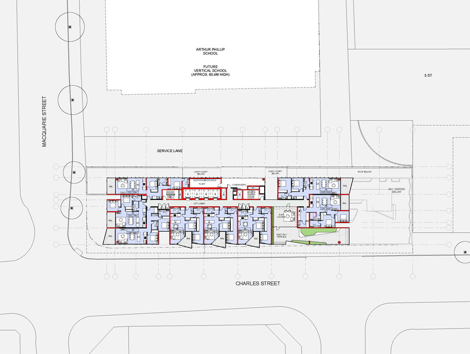
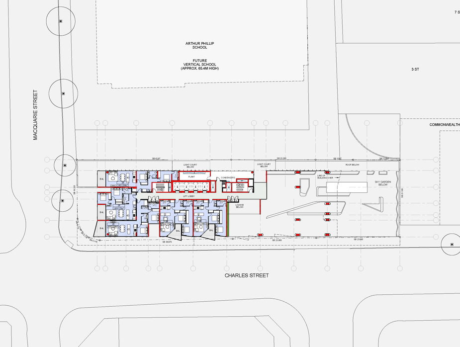
The architecture of the tower responds primarily to three design concepts: the interface of the buildings with the open space at street level; the response to the wider urban and landscape setting and views; and built form articulation through surface treatment and controlled variation. The building adopts a ‘hybrid form’ of tower, street walls and horizontal slots to interface with the ground, the street, the city, the river, the sun and the sky. The siting of the tower is street edge and reinforces the existing and future public domain. It facilitates a through-site public way that connects Charles Street to the future access way on the adjoining Arthur Philip School site. A small forecourt is provided at the corner of Macquarie and Charles Street to resolve the facetted boundary condition and extend the pedestrian footways.
The tower is divided horizontally into five stacks of 9 storeys generally and four stacks on Charles Street to accommodate the street wall component with the insertion of two storey recessed sky terraces and bio-lounges at the base of each stack. The sky terraces act as green portals for collecting fresh air. The sky terraces and bio-lounges are positioned at the north-east and south-west corners of the tower to capture views to Parramatta River and historic city centre. All sky terraces and bio-lounges are for the use of all residents and visitors. The child care centre is located in the lower level of the tower and is apparent by the recessed horizontal slot for the open air play area on the Charles Street elevation.
Data
Type: Live/ Work/ Shop/ Learn/ Hybrid
Location: 5-7 Charles Street + 116 Macquarie Street, Parramatta, Australia
Status: DA submitted
Year: 2015-19
Client: Statewide Planning
Number of storeys: 12-48
Site area: 1,800 sqm
Floor area: 37,200 sqm
Number of apartments: 390
Collaborators: Sturt Noble Associates
Digital imagery: David Duloy
Winner: Invited design excellence competition
images
drawing