Information
EDO
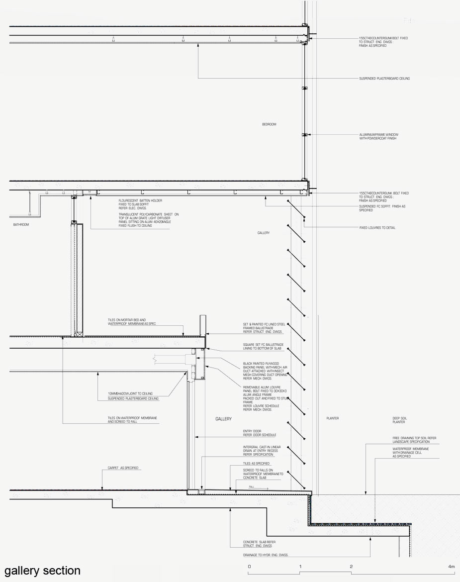
The design concept for the project is two, twelve storey forms around a central courtyard that functions as a breezeway and bio-sink of cool air that creates an invigorating and refreshing environment, with open gallery walkways. It is an example of ‘eco design’ that responds to its location and setting to create a ‘green aesthetic’. The built form has distinctive deep recessed windows that create strong horizontal ribbons that wrap around three facades of the building. They are punctuated by artwork in the form of patterning to the precast concrete lift and stair core that has an applied cementitious green wash that extends onto the gallery walkways within the central courtyard.
The podium to Montgomery Street incorporates recesses and small windows at Level 2 to create a vertical proportion to the lower levels in response to the heritage buildings to the north west of the site.
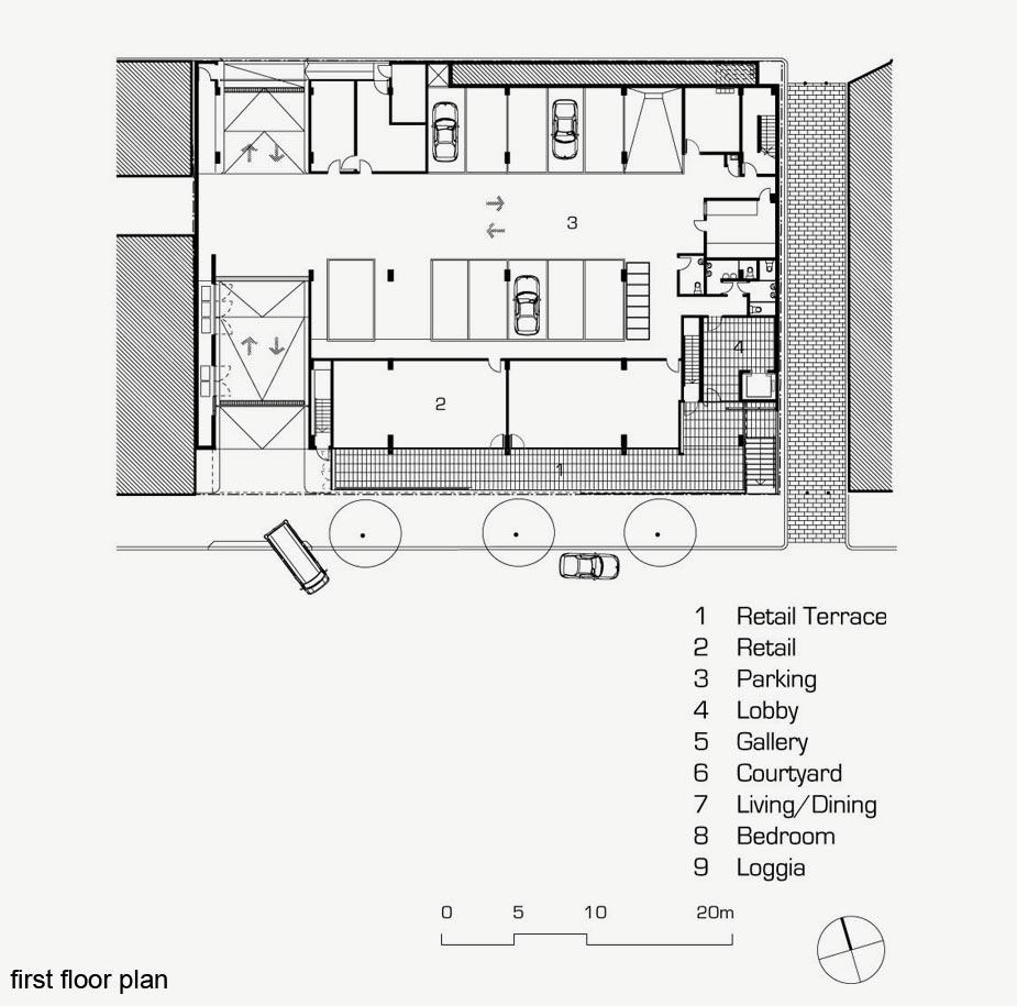
Montgomery Street is a major mixed use, active street encompassing low rise retail, commercial and medical uses. The development has 61 apartments with retail and commercial at lower levels within a podium that is built to the street boundary. A 4.5m side setback has been introduced to avoid a continuous street wall and maintain morning sunlight to the public domain.
To achieve visual privacy to future building forms to the south west, translucent glass is used to maximise daylight to apartments and to avoid blank walls.
Extensive modelling has been achieved to the Montgomery Street and Moorefield Lane elevations by introducing horizontal louvres at every second level to create 2 storey volumes and a green accent colour. These modifications relieve the repetitiveness of the elevation and enhance the built form characteristics of the development. A green accent colour has also been introduced to the side walls to emphasise the patterned precast core walls. The ‘dusty green’ colour is a low pigmented cementitious coating that is applied to concrete.
An entry arcade provides access to separated residential and commercial lobbies and facilties that service the shops. A skylight penetrates to the central courtyard above, bringing daylight into the entry arcade and establishing a visual connection between the entry lobby to apartments above.
The site landscape is an integral part of the architectural concept ‘to create a landscaped building’ where landscaped communal open spaces are an essential experience for residents, temper the harsh urban reality, reduce heat gain, improve air quality and project a sense of greenness and sustainability.
The central open space is capped with a 1m wide fixed elliptical louvred screen to provide shade and rain protection to the open gallery walkways. Planter boxes are fixed to the gallery walkways around the central open space, backed up by a rainwater system, to enrich the space and improve the pedestrian experience and encourage social interaction.
There are a variety of communal open spaces including a central courtyard and roof terrace platform that contains a garden and pool. The central courtyard contains a garden that is accessible to all residents and provides outlook from the galleries. The roof terrace incorporates small gathering spaces, BBQ area with fixed bench and seats with umbrellas, informal seating area with moveable café style tables and chairs, sun lounge area, movable sun lounges and fixed daybeds, community garden and communal unisex WC.
The pool terrace is at the same level as the other communal areas and contains a large timber deck with ornamental exotic trees to provide shade and direct outlook to the city skylight. The pool terrace also contains an outdoor shower.
Data
Type: Hybrid/ Live/ Work
Location: 32-38 Montgomery Street, Kogarah, NSW Sydney, Australia
Status: Work in progress
Year: 2017 – ongoing
Client: Lateral Estate
Site area: 1347 sqm (672sqm retail, 407sqm commercial, 4982sqm residential)
Floor Space Ratio: 4.5:1
Height: 12 storeys
Apartments : 61
Collaborators: NBRS Landscape, Planning Ingenuity
Builder: Waterside Construction
Digital Imagery: Narrative
Images
Drawing


