Information
Croydon Park
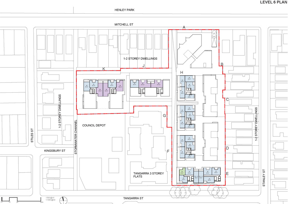
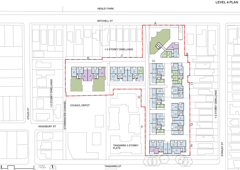
Croydon Park comprises a rich and complex, socially and environmental sustainable living environment within an existing low-rise residential setting. Key concepts underlying the vision are Diversity, Connectivity and Community. The key design concept is a ‘comb-like’ network of pedestrian pathways facilitates easy movement through and around the site, while defining a legible framework for the placement of a diverse range of building types. The main north-south pedestrian through-site, pedestrian way connects Tangarra Street East and the blocks to the south of the site to Mitchell Street and Henley Park to the north. It connects to a network of secondary pedestrian pathways that access the site, the ground level entry lobbies and common courtyards.
The footprints and height of the built form envelopes are located within strict design controls of building separation and side boundary setbacks based on the Apartment Design Guide. These controls ensure that the amenity of both site residents and neighbours is maintained.
The 3 to 6 storeys height of the proposed built form is calibrated to minimize overshadowing of neighbouring properties. The built form on Mitchell Street is 3 storeys to fit in with 2 storey dwelling houses. The 6 storey built form on Tanagarra Street, East adopts the scale of the double line of mature street trees.
The preferred proposal achieves an FSR 1.7:1 (32,762sqm GFA) on a site area of 19,272sqm in 10 buildings (A to J) of various sizes and orientation with heights transitioning from 3 storeys (11 metres) to 6 storeys (20 metres). The building height grades across the site in response to streetscape, neighbouring properties, common open space and pedestrian pathways. The highest 6 storey buildings are in a L-shaped formation lining the main north-south and east-west pedestrian pathway in the centre of the site. The buildings are at the existing height of the glass conservatory and tower building on the Flower Power site. The lower 3 and 4 storey buildings defined the Mitchell Street streetscape and side boundaries to the east, respectively.
The height of the north-south buildings in the centre of the site are graded within a sun access plane to optimise solar access and minimise overshadowing of the existing ‘Tangarra’ flat building and potential future flat building on the Burwood Council Depot site. The 6 storey building on Tangarra Street East is masked by a double row of mature street trees in the 13 metre footway zone.
Data
Location: 25-29 Mitchell Street, Croydon Park
Client: Flower Power
Site Area: 19,272 sqm
Floor Area: 32,762 sqm (1.7:1)
Date: 2017
Status: Completed
Collaborators: Sturt Noble Associates, Narrative Illustrations
images
drawing
Related Projects

Macquarie Street
The building is a unique tower which reflects its city centre, river and street setting. It is a ‘building-in-the-round’ which is designed to be viewed from all directions. It will be an urban marker …

Showground
Showground is an environmentally sustainable and high intensity living environment within an existing low-rise residential setting that is transitioning to high density living, centred on the new Show…
