Information
Belmore
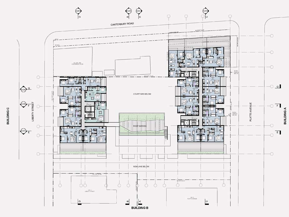
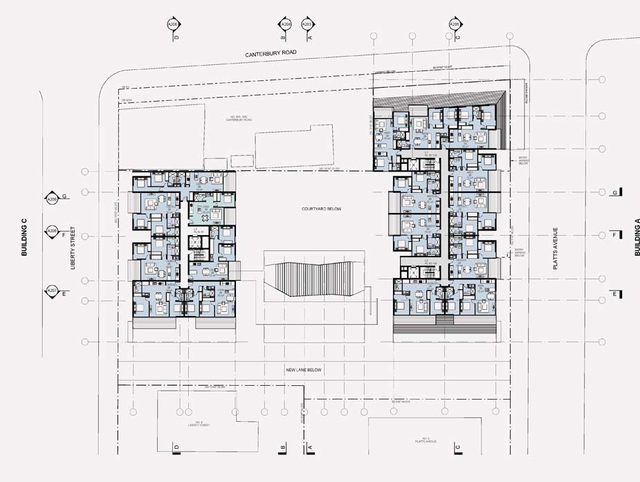
Stanisic Architects have recently completed a development application for two 8 storeys buildings that transition to 4 storeys along a new lane to adjust to the surrounding low-rise residential context on Canterbury Road, Belmore. The design concept is for a perimeter form and central courtyard comprising 149 apartments (12,860 GFA) and 390sqm commercial floor space to Canterbury Road. The site is located on a significant corner at Canterbury Road/ Platts Avenue and is marked with street defining commercial uses and awnings before transitioning into a full-residential building. The new shared-lane provides a visual and pedestrian connection between Platts Avenue and Liberty Street. All facades are heavily articulated with balconies pushing into setback zones, repeated floor-to-ceiling window modules and the judicious use of contrasting materials. The perimeter street wall buildings are characterised by the use of white precast concrete panels. The balcony balustrades facing the three street frontages are solid masonry for the first 2 storeys respecting the need for visual privacy from the public domain. The upper balconies are highlighted with gold perforated metal panels. The hint of colour throughout the development creates visual interest and vibrancy from the streets and ties the development together. The infill building to the new laneway has a different character and acts as a backdrop to the courtyard. This building is sheathed in bronze finished panels, balustrades, pergolas and louvres and acts as the ‘jewel’ within the larger complex.
Data
Type: Live / Shop
Location: 642-644 New Canterbury Road, 1-3 Platts Avenue and 2 Liberty Street, Belmore, Australia
Status: Development Application submitted
Year: 2015
Client: Holt Point Pty Ltd
Number of storeys: 4 to 9
Site area: 4,522 sqm
Floor area: 13,324 sqm
Number of apartments: 95
Collaborators: Sturt Noble Associates
Digital imagery: Ivolve Studio
images
drawing