Information

222

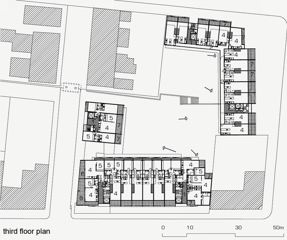
Located at the northern end of a large block, this project completes the comprehensive redevelopment of the city block. It mediates between the larger scale adjoining apartment buildings and smaller scale historic hotels, terraces and the Buddist temple of the Yiu Ming Chinese Precinct. The site is located at the junction of three key streets – Botany Road, McEvoy Street and Wyndham Road – on the northern edge of Green Square, 850 metres from the Green Square Station and 200 metres from Alexandria Park. It is well suited to higher density, mixed-use residential development based on the urban and environmental principles of the Green Square Structural Master Plan, architectural quality and enhanced residential amenity.

The architectural concept for the site is four perimeter buildings facing north, east and west, fragments that define a multi-level, central courtyard. The buildings step up from 4 to 9 storeys, from Retreat Street to Botany Road, to provide a calibrated and measured response to the diverse street conditions and existing building fabric. The courtyard is traversed by a through-site public way.

The four perimeter buildings are walk-up, gallery and cross-over forms: 4 storey, walk-up building on Retreat Street, 4 to 6 storey, gallery building on Wyndham Road, 8 storey gallery building on McEvoy Street and 9 storey, cross-over building on Botany Road with the top storey setback from the street boundary to maintain the strong wall definition of the neighbouring apartment building. The highest building is at the corner of Botany Road and McEvoy Street, and replicates the height of the building at the corner of Botany Road and Mandible Street, at the southern end of the block.

The project contains 122 apartments, professional suites, street level shops and supermarket. The two storey apartments accessed from cross-over corridors and galleries have through-flow natural ventilation, solar access, light and excellent climatic control.

The buildings have a crate-like, cellular appearance to the street, defining living areas and deep balconies. The elevations of the central communal courtyard are simpler in character, containing mainly bedrooms and glazed access galleries. Roof terraces of the McEvoy Street building are accessed by stairs from lower level units. The elevations express the different sectional qualities of each building.

The central communal courtyard is a multi-functional space that provides ground level access to adjoining dwellings, privacy between habitable rooms, deep soil tree planting and site based water retention. A upper level communal courtyard at the north-west corner of the site is planted with a grove of trees and ringed with apartments suitable for home offices. The RTA road widening area on McEvoy Street will be paved and planted.

The split-level, basement car park, benched partly in the water table, extends under the central courtyard and perimeter buildings, and is accessed by ramp from Retreat Street. The basement mainly contains car parking for residents and visitors, bike storage, resident stores, waste store and service rooms. Some retail parking spaces are also provided.

Data

Type: Live / Hybrid
Location: 222 Botany Road, Alexandria, Sydney, Australia
Status: Completed
Year: 2009
Client: BBB
Number storeys: 4-9
Site area: 4,248 sqm
Floor area: 10,710 sqm
Collaborators: Oculus Landscape Architects
Photography: Patrick Bingham-Hall, Brett Boardman

Coda

CODA has an iconic presence in its urban setting due to its distinctive curved form, metallic louvre screen that wraps around the building’s street edge, and the cantilevered, wing-like, floating roof…

View

EDO

Emerald Park is a masterplan of the former Email industrial site that is situated on the western side of Joynton Avenue, between O’Dea Avenue and McPherson Lane, which includes a major privately funde…

View

Spectrum

Spectrum is road architecture, with the south elevation of the main building facing onto a future six lane arterial and the north elevation facing a s…

View