Information
UTS FEIT Innovation Hub
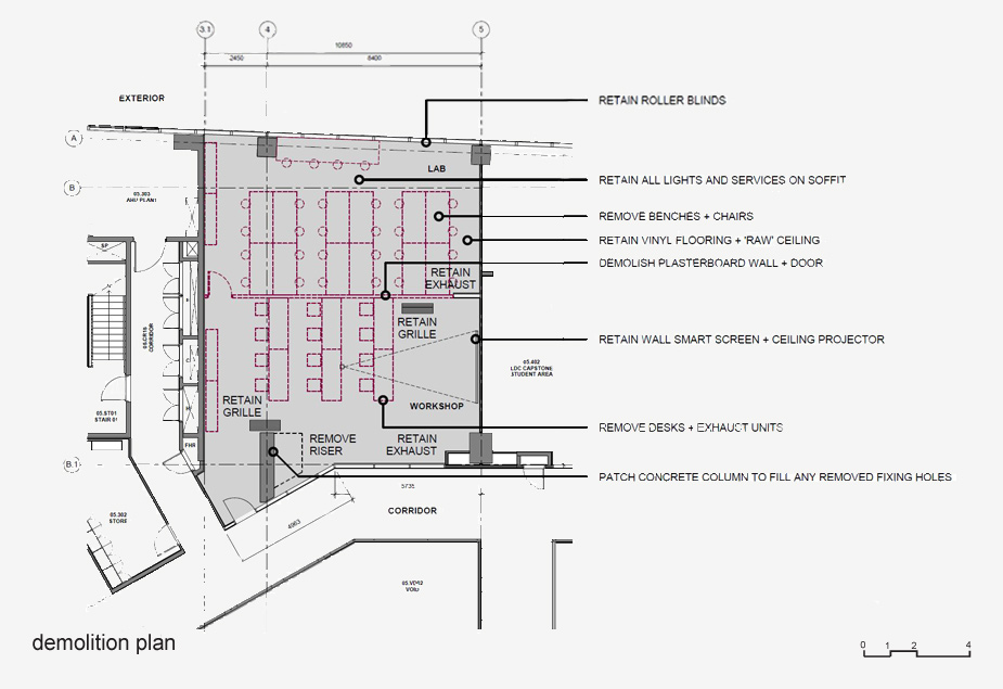
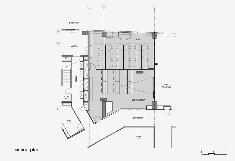
UTS Innovation is a organic and flexible environment for 30 people to encourage an atmosphere that supports innovation and creative interaction developed with the students. The space is used for small groups to large presentations, where all of the movable furniture can be relocated into the purpose built storage area hidden behind a screen. The new space amalgamates two existing under-utilised rooms.
The project introduces filtered and screened natural light from the northern wall using decal on glass, and maintains the ‘gold fish’ bowl from the corridor into the space to increase permeability. All of the coloured wall surfaces are magnetic glassboards that allow students to scribble and pin-up sketches.
A number of different zones have been created to permit a range of activities including banquette seating, lounge, stage, quiet bean bag area, display, digital charging, workshop.
Digital display and tv trolleys have been introduced into the space within the wifi loose-fit environment.
Colour has been introduced into the space to define zones and to contrast with the raw off-form concrete soffit and columns. The bold tertiary colours spark debate and liven the environment for the students.
The decal graphic is a conceptual graph that is a model for knowledge, representation and reasoning.
Data
Type: Inside / Learn
Location: UTS City Building, Building 11, Level 5, Faculty of Engineering + Information Technology
Status: Completed
Year: 2018-19
Client: UTS Facility Management Office
Floor area: 230 sqm
Collaborators: Jones Nicholson
Builder: Intrec
images
drawing
cgi
Related Projects



USYD Law Faculty
Pieces of a University settlement – lost in space, lost in void….my first impression was wrong I must admit. There is order, there is a hierarchy of buildings, there is cohesion within the campus, …