Information
Roseville
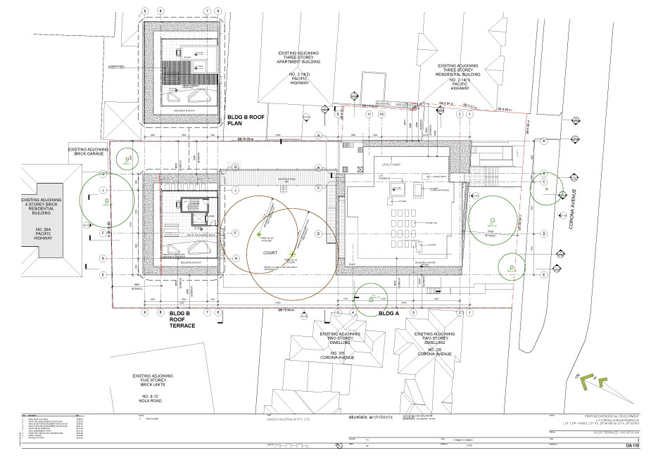
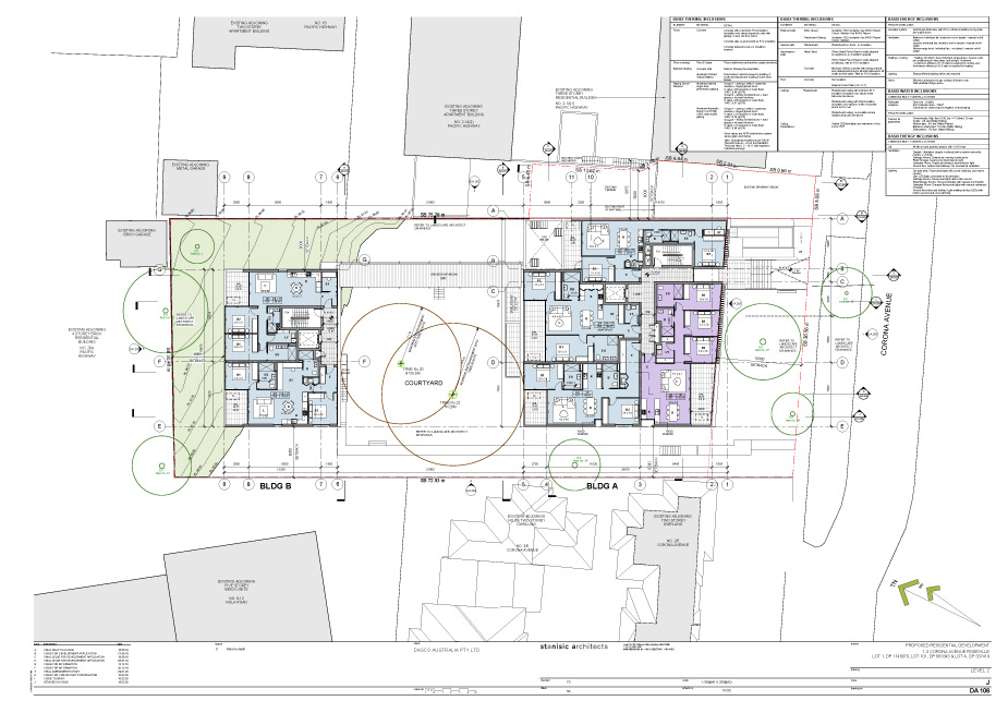
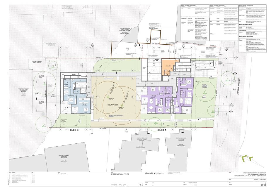
The design concept for the project is two, five storey forms separated by a central courtyard to retain two magnificent and tall, Sydney Blue Gums trees. The footprints of the buildings are tailored around tree protection zones and tree canopies which contain sensitive flora and fauna. The split form reduces the mass and bulk of the development, so that it sits comfortably within the existing streetscape and context of surrounding buildings. The buildings are setback 6m from all boundaries, maximising soft landscaping around the perimeter of the site. The mass and bulk of the buildings are further reduced by flat roofs and horizontal sunscreens. The top levels of the buildings are recessed from the levels below to reduce their visual impact, particularly along the street.
The simple elevational treatments focus on generous glazing and balconies that maximise visual connections from living areas to the Sydney Blue Gums within the central courtyard. Vertical slot windows and brick walls to bedrooms and living areas along side boundaries ensure that visual privacy to neighbouring sites is achieved.
The apartment layouts optimise solar access to living rooms and private open spaces. Living rooms and balconies are located to the north and at corners where possible.
A covered bridge, is suspended above the central courtyard canopy on the eastern side of the site and provides a physical connection between buildings from the main street entry.
The site landscape is an integral part of the architectural concept ‘to create a landscaped building’ where landscaped communal open spaces are an essential experience for residents, temper the harsh urban reality, reduce heat gain, improve air quality and project a sense of greenness and sustainability.
The central courtyard at the lower ground incorporates a gathering space, BBQ area with fixed bench, vine covered pergola, slippery dip and informal seating.
Brickwork is primary material used for the external walls due to its good passive solar performance and durability within a ‘bushland’ setting. The recessed top level is finished in translucent aluminium framed performance glazing.
The aluminium windows have a dark bronze, powdercoat finish, or similar, that gives depth to the window openings. Balustrades are a metal picket to the courtyard and translucent glass within aluminium frames to the side boundaries.
Data
Type: Live
Location: 1-3 Corona Avenue, Roseville, NSW Australia
Status: Work in progress
Year: 2018 – ongoing
Client: Dasco Australia
Site area: 2467sqm
Floor Area: 2677sqm
Floor space ratio: 1.08:1
Height: 5 storeys
Apartments : 23
Collaborators: Jamie King Landscape Architect, Daintry Associates
Digital Imagery: Narrative
Images
Drawing
Sketch
Cgi