Information
Nanhui
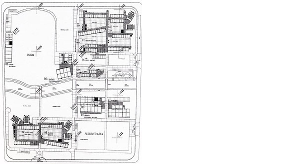
Masterplan precinct faculty buildings, library and gymnasium 2 to 6 storey buildings; no lifts; air conditioning, teaching rooms, raked and flat lecture rooms, open galleries, entries, parking, couryards, roadways and footways; In situ concrete frame, mansonry block infill and external ceramic tile finishes.
Data
Type: LEARN
Location: Nanhui County, China
Status: Construction completed
Year: 2000
Client: Nanhui County
Number storeys: 2-6
Floor area: 60,000 sqm
Image
Related Projects

Roseville Centre
This project is an exploration of passive design and density within a hybrid building framework. It’s porous and permeable form, with pathways for breezes and sun, perfectly complements the bushland s…

USYD Law Faculty
Pieces of a University settlement – lost in space, lost in void….my first impression was wrong I must admit. There is order, there is a hierarchy of buildings, there is cohesion within the campus, …

Green Square Masterplan
Projection of 25,000 living + 15,000 working population; green and compact model based on sustainability principles; armature of parks; public domain framework; systems of channels and ponds;average f…