Information
Breeze
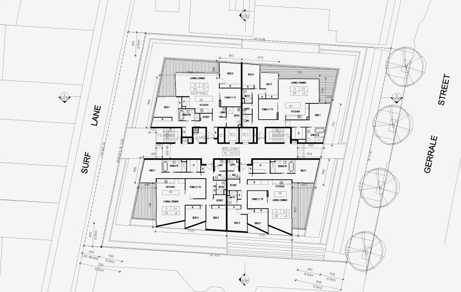
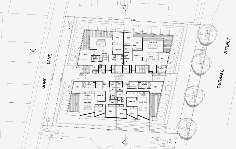
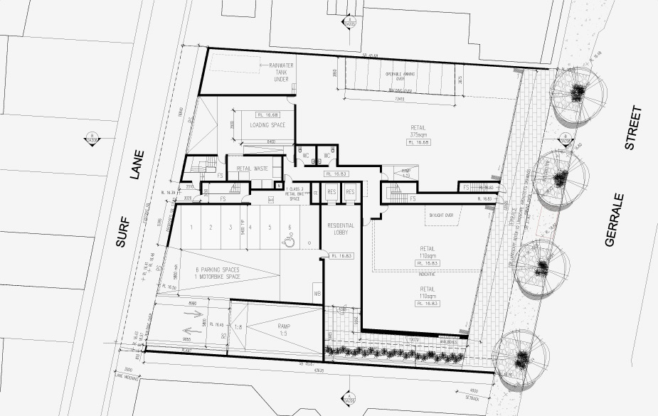
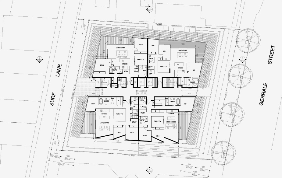
The built form is expressed as two elements – 6 and 9 storeys, containing residential use, split by the breezeway/lobbies. The block form is extended at ground level to form retail space. The elements are unified by a sheltering roof that is profiled to the sun access planes and view lines from the neighbouring building – ‘Belgrave’.
The block form is approx 30 x 29.5m (east west/ north south). The east-west breezeway that splits the building form into two elements reduces the dwelling depth to 13-15m in the north element and 12-14m in the south element. The breezeway is a semi-enclosed, tempered space that improves the passive performance of the building.
The building has a contemporary, coastal aesthetic that expresses the sustainable aspirations of the project, and its spirit of innovation and environmental excellence. Its design respond primarily to the site, the sun and the street, specifically through the use of operable shading, durable technology, rational construction, tempered spaces and public interface.
The building exterior is human scaled, using elements such as the street wall, the split block form, central breezeway, deep eaves and metal roof cladding to adjust the building bulk to the pedestrian scale. The profiled block form, with its distinctive, asymmetrical sheltering roof, allows sharing of the sun and view with the residential building to the south. The external building appearance has a lightness and casualness that is appropriate to the fine coastal setting. It is characterised by extensive use of external aluminium venetian blinds located within horizontal floor bands on the east, north and west elevations. The south elevation has light weight, metal wall panels and small windows, screened with fixed, aluminium louvres to eliminate visual privacy between bedrooms of the project and the adjoining north facing living areas of the adjoining residential building.
Data
Type: Live/Hybrid
Location: 19-21 Gerrale Street, Cronulla, Sydney, Australia
Status: Unrealised
Year: 2011
Client: Sammut Developments Pty Ltd
Number of storeys: 9
Site area: 1710 sqm
Floor area: 3420 sqm
Digital imagery: Lucid Metal
drawing
cgi