Information
Alison
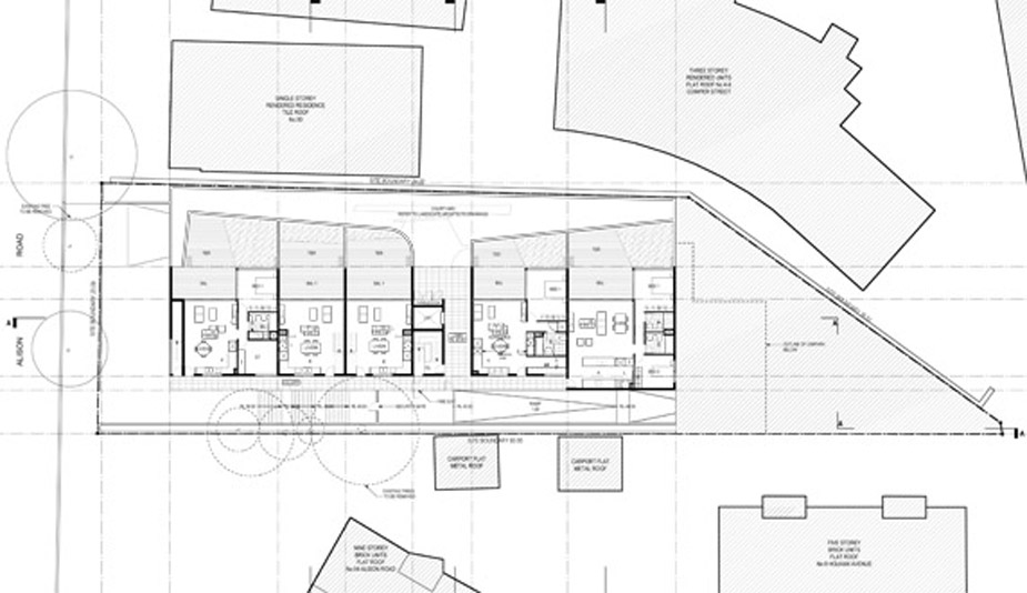
Single, slimline block with ‘honeycomb’ spatial structure, all north facing apartments;
4 – 5 storey height with cross-over galleries and basement level carpark;
18 apartments, 1 + 2 storey, with natural cross flow and 1 x lift core;
generous garden courtyard, communal terrace and roof terrace with views to Randwick racecourse.
Data
Type: LIVE
Location: Alison Road, Randwick
Status: Under construction
Year: 2006
Client:G + C Scarf Investments Pty Ltd
Number storeys: 4
Site area: 1,513 sqm
Floor area: 1,550 sqm
Collaborators : 360 degrees – Landscape Architects
Photography : stanisic architects
Digital imagery: stanisic architects – Christian Bruna
Image


